Villa Yiolani By Villa Plus
Preview only — see all hotel photos
See all 25 photos
Pokaż hotel na mapie
Villa Yiolani By Villa Plus
Oprócz dostępu do takich atrakcji przyrodniczych jak Yiannakis Beach, w 2 km, Villa Yiolani By Villa Plus Latsi oferuje basen.
Ambiental Touch leży 10 min jazdy od willi w Latsi, a Asprokremmos Beach, Polis Bay - w odległości 25-minutowego spaceru. W 4 km od stąd znajduje się Archaeological Museum of Marion-Arsinoe.
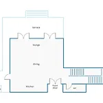
W łazience znajduje się zmywarka i prysznic. Suszarka do włosów i ręczniki są wliczone w cenę, aby zwiększyć komfort.
Villa Yiolani By Villa Plus dysponuje również pełnowymiarową kuchnią z takimi udogodnieniami jak ekspres do kawy/herbaty i zmywarka do naczyń. Goście mogą zjeść posiłek w odległości 25-minutowego spaceru stąd w restauracji Pavlaras Taverna. Najbliższy przystanek autobusowy to Akamandos 11, niedaleko od willi. Miłośnicy sportu mogą wybrać bilard.
Wyposażenie
Udogodnienia
- Wi-Fi
- Rekreacja
- Hotel przyjazny dzieciom
- Klimatyzacja
- Zwierzęta nie są dozwolone
Udogodnienia
- Całkowity zakaz palenia
- Wi-Fi
- Parking
- Sejf depozytowy
- Zakaz wprowadzania zwierząt
- Czujniki dymu
- Sprzęt do barbeque
- Stoły bilardowe
- Klimatyzacja
- Herbata i kawa
- Pralka
- Kojce
Zasady pobytu
Mapa
Lokalne atrakcje
Lotniska
- Lotnisko Pafos (58 km)
Opinie
100% zweryfikowane opinie gości